
- pamiatka
- Palisády
- Tolstého, Bratislava-Staré Mesto,
Internal ID: | 23000171 |
---|---|
City/Town: | Dunakiliti |
District: | Mosonmagyaróvári |
County: | Győr-Moson-Sopron |
Category: | Apartments |
Type: | Sale |
Apartment type: | Four+ bedroom apartment |
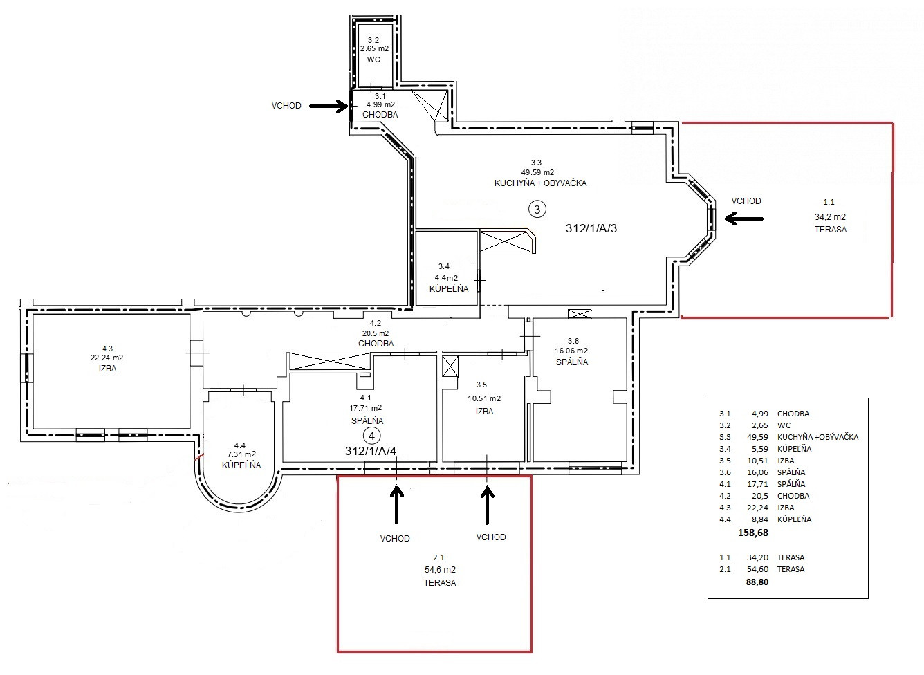
Ponúkame predaj výnimočného bytu vo veľkosti podlahovej plochy 158,7m² + 2 terasy s celkovou rozlohou 89m² + menšia pivnica 1,5m², situovaného na prízemí 3 podlažného bytového domu s 10 bytmi. K bytu prislúchajú 2 vonkajšie parkovacie státia a má juho-východnú orientáciu.
Byt má veľkorysý spoločenský priestor – spojenú kuchyňu s obývačkou vo veľkosti 50m² s prístupom na terasu o rozlohe 34m², 4 samostatné spálne, ďalej 2 kúpeľne a 1 samostatnú toaletu. Na väčšiu terasu vo výmere 55m² sa vchádza z 2 izieb. V byte sú inštalované plastové okná; lamino podlahy v izbách; dlažba v sociálnych miestnostiach, kuchyni a v hosťovskej izbe; podlahové kúrenie v celom byte. Kuchynská linka je vybavená všetkými spotrebičmi vrátane umývačky riadu.
Bytový dom má vlastný plynový kotol na vykurovanie + ohrev vody so samostatnou reguláciu v každom byte. Vďaka zatepleniu a hrubému obvodovému plášťu, ktorého múry predstavujú hrúbku 50 cm, sa v byte drží príjemná klíma po celý rok.
Netradične veľký pozemok okolo domu s výmerou 4285m² predstavuje priľahlý park k pôvodnému kaštieľu, ktorý bol kompletne zrekonštruovaný a prestavaný na byty pred 10 rokmi. Areál je uzavretý – oplotený zo všetkých strán, s rozsiahlou trávnatou plochou, s okrasnými stromami (platany) aj ovocnými, s miestom určeným na opekanie a poskytujúci množstvo rôznych športových aj spoločenských aktivít. O pozemok, jeho zavlažovanie a údržbu sa stará záhradník.
Byt je výnimočný svojou rozlohou, vyžarujúci príjemnú atmosféru, prináša pokojné a pohodlné bývanie uprostred zelene, vhodný pre rodinu s deťmi. Jeho poloha so vzdialenosťou 30 km od Bratislavy, poskytuje rôzne možnosti relaxu a športového vyžitia – vodné športy, cyklistika, golf, dunajské ramená a termálne kúpalisko. Ponúka sa v celkovej cene 399 000,- Eur.