Používame cookies

Súbory cookie a ďalšie technológie sledovania používame na zlepšenie vášho zážitku z prehliadania našich webových stránok, na to, aby sme vám zobrazovali prispôsobený obsah a cielené reklamy, na analýzu návštevnosti našich webových stránok a na pochopenie toho, odkiaľ naši návštevníci prichádzajú. Viac info

 

Vaša nová adresa pod Slavínom

Interné ID: 23000224
Ulica: Mišíkova
Obec: Bratislava-Staré Mesto
Okres: Bratislava I
Kraj: Bratislavský kraj
Druh: Domy
Typ: Predaj
Typ domu: Rodinný dom
Cena v RK

Popis nehnuteľnosti

V jednej z najžiadanejších vilových štvrtí Bratislavy – na Mišíkovej ulici pod Slavín – ponúkame jedinečný rodinný dom s pozemkom o rozlohe 1 002 m2.

Lokalita, kde sa nehnuteľnosti objavujú na trhu len výnimočne, je synonymom prestíže, súkromia a pokojného bývania v bezprostrednej blízkosti centra mesta.

Tiché prostredie plné zelene, reprezentatívna zástavba víl a neopakovateľná atmosféra tejto časti Starého Mesta vytvárajú ideálne miesto pre nadštandardné mestské bývanie.

Pozemok, ktorý dáva slobodu vašim predstavám.

Nepravidelný lichobežníkový tvar s veľkorysou uličnou šírkou 29 m ponúka architektom výnimočný priestor pre kreatívne riešenie modernej vily.

  • južná časť záhrady s dĺžkou približne 40 m
  • severná časť s dĺžkou približne 20 m
  • slnečná orientácia zabezpečuje prirodzené svetlo počas celého dňa.

Rozloha 1 002 m2 poskytuje dostatok miesta na luxusnú rezidenciu so záhradou, bazénom, wellness zónou či reprezentatívnym exteriérom podľa vašich predstáv.

Súčasný stav:
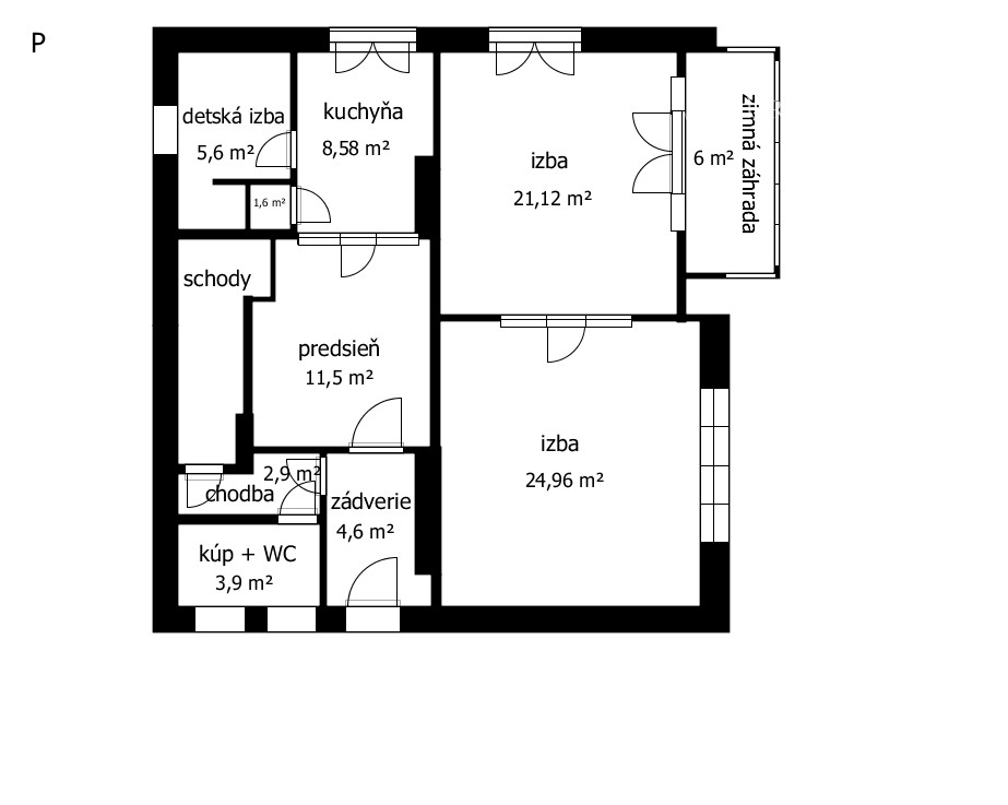
Na pozemku sa nachádza podpivničený dvojpodlažný rodinný dom s podkrovím so zastavanou plochou 177 m2.

Nehnuteľnosť je určená na kompletnú rekonštrukciu alebo ako ideálny základ pre realizáciu novej, modernej stavby v jednej z najlukratívnejších častí Slovenska.

Prečo práve táto ponuka?

  • prestížna adresa pod Slavínom
  • pokojná vilová štvrť s minimálnou ponukou nehnuteľností
  • slnečný, veľkorysý pozemok
  • výnimočný investičný potenciál
  • centrum Bratislavy na dosah.

Ak hľadáte exkluzívny mestský pozemok alebo dom na rekonštrukciu v lokalite, ktorá definuje status a nadčasovú hodnotu, táto ponuka je určená práve vám.

Doprajte si adresu, ktorá má meno - naša ponuka je vhodná aj pre náročného klienta.

Pôdorys a ďalšie fotografie nájdete na našej stránke: https://www.urbanpartner.sk/nehnutelnost/12934584-vasa-nova-adresa-pod-slavinom 

Vlastnosti

Status:
aktívne
Vlastníctvo:
osobné
Plocha pozemku:
1002 m2
Typ zeme:
svahovitá
Teritórium:
Intravilán
Úžitková plocha:
300 m2
Zastavaná plocha:
177 m2
Podlahová plocha:
250 m2
Stav:
pôvodný stav
Energetický certifikát:
G
Energetická náročnosť budovy:
Klasické materiály
Typ budovy:
tehla
Balkón:
áno
Loggia:
áno
Terasa:
áno
Garáž:
áno
Celková plocha:
1002 m2

Pozrieť na mape

Maklér

Mgr. Martin Lazík

Mgr. Martin Lazík

Projektový manažér

Radi Vám poradíme

Podobné nehnuteľnosti