
- Tiché prostredie
- Obchody
- MHD
- Gunduličova, Bratislava-Staré Mesto,
Ulica: | Dolná |
---|---|
Obec: | Banská Štiavnica |
Okres: | Banská Štiavnica |
Kraj: | Banskobystrický kraj |
Druh: | Byty |
Typ: | Predaj |
Typ bytu: | 2-izbový byt |
Iné: |
URBAN&PARTNER ponúka exkluzívne na predaj byty a apartmány v srdci Banskej Štiavnice, v projekte KERLING na Dolnej ulici. Budova KERLINGU je vo finálnej fáze kompletnej rekonštrukcie, kde boli použité kvalitné materiály a moderné technológie, pričom plne rešpektuje pamiatkovú zónu.
V ponuke sú 1 až 3-izbové byty – spolu 31 bytových jednotiek a 42 parkovacích miest. Byty ponúkame vo výmerách od 35m2 až po veľkorysé priestory do 106m2, ktoré sú vyhotovené v kvalitnom štandarde. Developer ponúka možnosť dokončiť byt aj so zariadením.
Veľkou výhodou je možnosť kúpiť si aj parkovacie státie ku každému bytu, čo vyrieši tradičný problém s parkovaním v pamiatkovej zóne.
Nehnuteľnosti sú určené ako na trvalé bývanie, tak aj na rekreačné účely a sú výbornou investičnou príležitosťou. Developer ponúka po zakúpení získať aj komplexné služby zahŕňajúce správu nehnuteľnosti, upratovanie, zimnú údržbu a služby ubytovania. Pohodlne a bez starostí si tak užijete svoju nehnuteľnosť kedykoľvek počas roka.
Byty sú skolaudované.
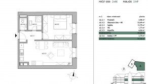
Dávame do pozornosti 2-izbový byt A2.3, ktorý sa nachádza na 2. poschodí , s celkovou plochou 51,04m2. Praktický bytík so samostatnou spálňou a nepriechodnou obývačkou s kuchynskýám kútom, ďalším bonusom je samostatná toaleta. V celkovej ploche je zarátaná aj kobka vo veľkosti 3,75m2.
LOKALITA
Banskú Štiavnicu zrejme netreba veľmi predstavovať, je to mesto v srdci Slovenska a je súčasťou svetového dedičstva ľudstva UNESCO vďaka svojmu stredovekému baníckemu centru. Krásne historické centrum, plné malebných zákutí a kaviarničiek vám vyčarí úsmev na tvári v ktoromkoľvek ročnom období. Okolie ponúka nádhernú prírodu v podobe Štiavnických tajchov, štôlní alebo Banského múzea v prírode, či kalvárie. Núdza nie je ani o aktívny oddych, či si ho už doprajete vo forme lyžovačky v stredisku Salamandra Resort, prechádzky Botanickou záhradou, výletom na Sitno či cyklovýletom po okolí. Zároveň mesto ponúka plnú občiansku vybavenosť, ako škôlky, školy, služby, reštaurácie alebo obchody.
DEVELOPER
Accros už viac ako 20 rokov tvorí pre klientov jedinečné investičné riešenia a príležitosti. Spoločnosť pôsobív oblasti investícií, správy majetku, hotelierstva, real estate, private equity, inovácií, energetiky, retail, fashion a zdravotníctva.
Viac informácií a celá ponuka bytov: www.bytykerling.sk
Neváhajte nás kontaktovať pre viac informácií alebo dohodnúť si obhliadku.
KONTAKT
Ing. Silvia Mojžišová, tel. 0911 111 464
Mgr. Zuzana Kovárová, tel. 0903 283 222
Email: predaj@acrossproperties.sk